५० kVA ट्रान्सफर्मर इलेक्ट्रिक पोल-13.8/0.347 kV|क्यानडा २०२५
क्षमता: 50kVA
भोल्टेज: 13.8/0.347kV
सुविधा: उच्च भोल्टेज डबल बुशिंग

क्यानाडाको ओभरहेड नेटवर्कहरूका लागि भरपर्दो शक्ति - CSA-अनुरूप र बाहिरी-तयार
01 सामान्य
1.1 परियोजना पृष्ठभूमि
क्यानाडामा स्थानीय उपयोगिता वितरणको माग पूरा गर्न, ५० kVA, 13.8 kV एकल-फेज पोल-माउन्टेड ट्रान्सफर्मरका तीन इकाइहरू वितरण गरियो। CSA C2.1 र C802.1 मापदण्डहरूको अनुपालनमा डिजाइन र निर्मित, यी ट्रान्सफर्मरहरूले भरपर्दो कार्यसम्पादन र क्यानाडाली विद्युतीय आवश्यकताहरूको पूर्ण पालना सुनिश्चित गर्दछ।
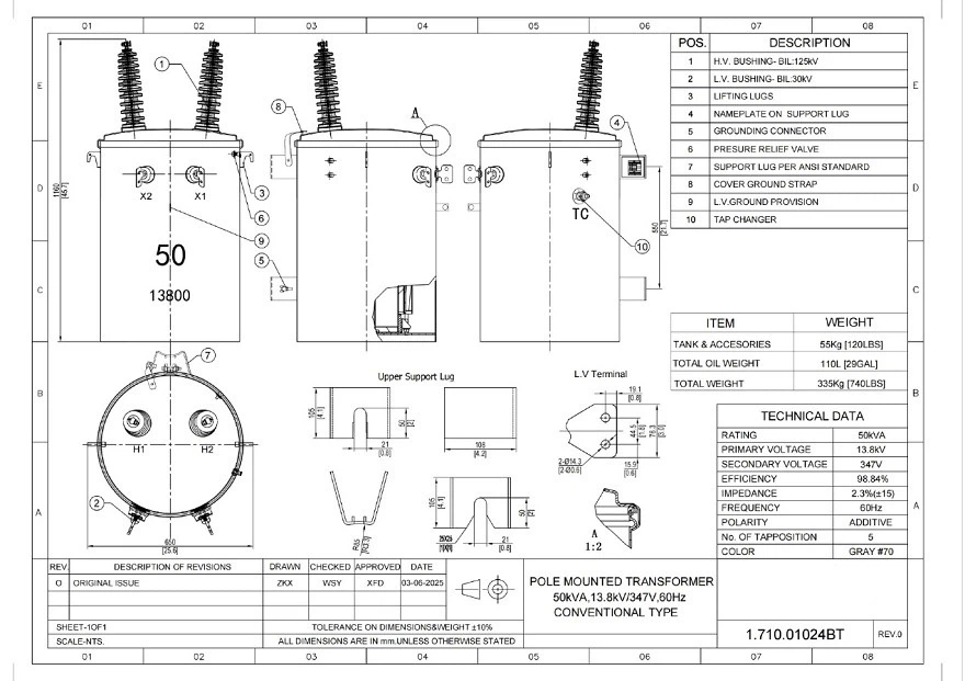
प्रत्येक ट्रान्सफर्मरले 13.8 kV डेल्टाको प्राथमिक भोल्टेज र 347 V को सेकेन्डरी भोल्टेज, 95 kV/30 kV को BIL रेटिङ, 2.3% ±15% को प्रतिबाधा, 65 डिग्रीको औसत घुमाउरो तापक्रम वृद्धि, र additive polarity सुविधा दिन्छ। बाहिरी ONAN कूलिङको लागि डिजाइन गरिएको, एकाइहरूले 5-पोजिशन ट्याप चेन्जर (±2×2.5%) समावेश गर्दछ र मानक पोल-टप स्थापनाको लागि कभर-माउन्ट गरिएको उच्च-भोल्टेज र साइड-माउन्ट गरिएको कम-भोल्टेज बुशिङहरूसँग सुसज्जित छन्।
एक सामान्य ट्रान्सफर्मर बिजुली पोल समाधानको रूपमा, यी एकाइहरू बाहिरी वातावरणमा ओभरहेड पावर वितरणको लागि ईन्जिनियर गरिएका छन् र निम्नका लागि उपयुक्त छन्:
• उपनगरीय वा ग्रामीण क्षेत्रहरूमा आवासीय क्षेत्रहरू
• एकल-फेज आपूर्तिको साथ हल्का व्यावसायिक लोड
• नेटवर्क विस्तार वा 13.8 kV मा फिडर सुदृढीकरण
1.2 प्राविधिक विशिष्टता
50kVA सिंगल फेज बिजुली पोल माउन्टेड ट्रान्सफर्मर स्पेसिफिकेशन र डाटा शीट
|
लाई पठाइयो
क्यानडा
|
|
वर्ष
2025
|
|
टाइप गर्नुहोस्
पोल माउन्ट गरिएको ट्रान्सफर्मर
|
|
मानक
CSA C2.1
|
|
रेटेड पावर
५० kVA
|
|
आवृत्ति
६० HZ
|
|
ध्रुवता
घटाउने
|
|
भेक्टर समूह
Ii0
|
|
प्राथमिक भोल्टेज
13800 V
|
|
माध्यमिक भोल्टेज
347 V
|
|
घुमाउरो सामग्री
कपर
|
|
प्रतिबाधा
2.3%
|
|
शीतलन विधि
ONAN
|
|
परिवर्तक ट्याप गर्नुहोस्
NLTC
|
|
ट्याप दायरा
±2X2.5%
|
|
दक्षता
98.84 %
|
|
लोड हानि छैन
135 W
|
|
लोड हानि मा
705 W
|
|
सामानहरू
मानक कन्फिगरेसन
|
1.3 रेखाचित्र
50kVA सिंगल फेज बिजुली पोल माउन्ट गरिएको ट्रान्सफर्मरको आयाम र वजन विवरणहरू
![]() |
![]() |
02 निर्माण
२.१ कोर
यो 50kVA बिजुली पोल माउन्ट गरिएको ट्रान्सफर्मरले उच्च-गुणस्तरको चिसो-रोल्ड सिलिकन स्टिल कोरलाई घुमाउरो बनाउँछ। यसको कम्प्याक्ट संरचना र समान चुम्बकीय सर्किटले प्रभावकारी रूपमा 160W मा कुनै-लोड हानि कम गर्दैन। CSA C2.1 मापदण्डहरू पूरा गर्न डिजाइन गरिएको, यो 13.8/0.347kV वितरण अनुप्रयोगहरूको लागि उपयुक्त-छ।

२.२ घुमाउरो
ट्रान्सफर्मर विन्डिङले तामाको सामग्री प्रयोग गर्छ, कम-तार वाइन्डिङबाट बनेको कम भोल्टेज र फोइल विन्डिङबाट बनेको उच्च-भोल्टेज घुमाउरोसँग। यो संयोजन उत्कृष्ट विद्युत चालकता र कुशल गर्मी अपव्यय सुनिश्चित गर्दछ। घटाउने ध्रुवता र Ii0 भेक्टर समूहलाई दक्ष प्राविधिकहरूद्वारा प्रदर्शन र विश्वसनीयतालाई अप्टिमाइज गर्न, कडा उत्पादन मापदण्डहरू पूरा गर्न सटीक रूपमा इन्जिनियर गरिएको छ।
2.3 ट्याङ्की

ट्रान्सफर्मर ट्याङ्की टिकाउ माइल्ड स्टिलले बनेको छ र क्षरण प्रतिरोध बढाउन हल्का खैरो इपोक्सी पेन्टले लेपित छ। सिल गरिएको संरचनाको रूपमा डिजाइन गरिएको, यसले प्रभावकारी रूपमा तेल चुहावट र आर्द्रता घुसपैठलाई रोक्छ। कडा बाहिरी वातावरणमा आन्तरिक कम्पोनेन्टहरूका लागि भरपर्दो सुरक्षा प्रदान गर्दै उत्कृष्ट सील कार्यसम्पादन सुनिश्चित गर्नका लागि प्रत्येक एकाइले कडा हावा -टाइटनेस परीक्षणबाट गुज्रिन्छ।
2.4 अन्तिम सभा
एसेम्बलीको समयमा, HV बुशिङहरू ट्याङ्कीको शीर्षमा माउन्ट गरिन्छ, H1 टर्मिनलले 4-वे क्ल्याम्प प्रयोग गरेर र H2 बोल्टद्वारा आन्तरिक रूपमा जोडिएको हुन्छ। LV स्पेड टर्मिनलहरू ट्याङ्की छेउमा सजिलो तारिङको लागि स्थापित छन्। कोर ग्राउन्डिङ, ट्याङ्की ग्राउन्डिङ, र ग्राउन्डिङ स्ट्र्यापहरू स्थापना गरिएका छन्, सुरक्षित र भरपर्दो सञ्चालन सुनिश्चित गर्दै स्टेनलेस स्टीलको एक-प्वाल स्पेड ग्राउन्डिङ टर्मिनलको साथ।

03 परीक्षण
नियमित परीक्षण
1. प्रतिरोध मापन
2. अनुपात परीक्षण
3. ध्रुवता परीक्षण
4. कुनै लोड घाटा र कुनै लोड वर्तमान
5. लोड घाटा र प्रतिबाधा भोल्टेज
6. लागू भोल्टेज परीक्षण
7. प्रेरित भोल्टेज प्रतिरोध परीक्षण
8. इन्सुलेशन प्रतिरोध मापन
9. तरल इमर्स्ड ट्रान्सफर्मरहरूको लागि दबाबको साथ चुहावट परीक्षण
10. तेल परीक्षण

परीक्षण परिणामहरू
|
छैन। |
परीक्षण वस्तु |
एकाइ |
स्वीकृति मानहरू |
मापन गरिएको मानहरू |
निष्कर्ष |
|
1 |
प्रतिरोधी मापन |
/ |
/ |
/ |
पास |
|
2 |
अनुपात परीक्षण |
/ |
प्रिन्सिपल ट्यापिङमा भोल्टेज अनुपातको विचलन: ± ०.५% भन्दा कम वा बराबर जडान प्रतीक: Ii6 |
0.05~0.08 |
पास |
|
3 |
ध्रुवता परीक्षण |
/ |
additive |
additive |
पास |
|
4 |
कुनै -लोड हानि र उत्तेजना वर्तमान |
% |
I0 :: मापन मूल्य प्रदान गर्नुहोस् (100%) |
0.24 |
पास |
|
kW |
P0: मापन मान प्रदान गर्नुहोस् (100%) |
0.1089 |
|||
|
% |
I0 :: मापन मान प्रदान गर्नुहोस् (105%) |
0.27 |
|||
|
kW |
P0: मापन मूल्य प्रदान गर्नुहोस् (105%) |
0.123 |
|||
|
/ |
लोड हानिको लागि सहिष्णुता +15% हो |
/ |
|||
|
5 |
लोड घाटा, प्रतिबाधा भोल्टेज, कुल घाटा र दक्षता |
/ |
t: 85 डिग्री प्रतिबाधाको लागि सहिष्णुता ±15% हो कुल लोड हानिको सहिष्णुता +8% हो |
/ |
पास |
|
% |
Z%: मापन गरिएको मान |
2.27 |
|||
|
kW |
Pk: मापन गरिएको मान |
0.636 |
|||
|
kW |
Pt: मापन मूल्य |
0.7449 |
|||
|
% |
दक्षता 98.84% भन्दा कम छैन |
99.00 |
|||
|
6 |
लागू भोल्टेज परीक्षण |
/ |
LV: 10kV 60s HV: 34kV 60s |
परीक्षण भोल्टेजको कुनै पतन हुँदैन |
पास |
|
7 |
प्रेरित भोल्टेज प्रतिरोध परीक्षण |
/ |
लागू भोल्टेज (KV): 0.694 |
परीक्षण भोल्टेजको कुनै पतन हुँदैन |
पास |
|
अवधि(हरू): 40 |
|||||
|
आवृत्ति (HZ): 180 |
|||||
|
8 |
इन्सुलेशन प्रतिरोध मापन |
GΩ |
HV-LV·to·ग्राउन्ड |
26.3 |
पास |
|
LV-HV टु ग्राउन्ड |
32.2 |
||||
|
HV&LV जमीनमा |
28.7 |
||||
|
9 |
चुहावट परीक्षण |
/ |
लागू दबाव: 20kPA |
कुनै चुहावट र छैन क्षति |
पास |
|
अवधि: 12 घन्टा |
|||||
|
10 |
तेल परीक्षण |
kV |
डाइलेक्ट्रिक शक्ति |
60.9 |
पास |
|
mg/kg |
आर्द्रता सामग्री |
10.5 |
|||
|
% |
अपव्यय कारक |
0.138 |
|||
|
mg/kg |
Furan विश्लेषण |
०.१ भन्दा कम वा बराबर |
|||
|
/ |
ग्याँस क्रोमैटोग्राफी विश्लेषण |
/ |
04 प्याकिङ र ढुवानी


05 साइट र सारांश
बिजुलीको पोल एप्लिकेसनहरूको लागि यो ट्रान्सफर्मर ५० kVA एकल-फेज पोल-माउन्ट गरिएको एकाइ हो जुन विशेष रूपमा क्यानाडामा स्थानीय वितरण प्रणालीहरूको लागि डिजाइन गरिएको हो, प्रमुख उत्तर अमेरिकी शक्ति मानकहरू पूरा गर्दछ। यो 13.8 kV मा बाहिरी ओभरहेड बिजुली आपूर्ति परिदृश्यहरूको लागि उपयुक्त छ, विशेष गरी उपनगरीय आवासीय क्षेत्रहरू, साना व्यावसायिक सुविधाहरू, र ग्रिड विस्तार परियोजनाहरूका लागि उपयुक्त छ जसलाई सुरक्षित, भरपर्दो, र कम{5}} मर्मतसम्भार शक्ति उपकरणहरू आवश्यक पर्दछ।
बलियो संरचनात्मक अखण्डता र स्थिर प्रदर्शनको साथ, ट्रान्सफर्मर कठोर मौसम र वातावरणीय अवस्थाहरूको सामना गर्न निर्माण गरिएको छ। यसले ऊर्जा संरक्षण र विश्वसनीयताका लागि क्यानाडाको कडा आवश्यकताहरू पूरा गर्न उच्च-दक्षता, ऊर्जा-बचत डिजाइनको साथमा उत्कृष्ट सील र शीतलन क्षमताहरू प्रदान गर्दछ। यसको प्रयोगकर्ता-मैत्री स्थापना र दीर्घकालीन स्थायित्वले यसलाई उपयोगिता कम्पनीहरू र विद्युतीय पोल-माउन्ट गरिएका ट्रान्सफर्मरहरू समावेश गर्ने पूर्वाधार विकास परियोजनाहरूको लागि इष्टतम विकल्प बनाउँछ।

हट ट्याग: ट्रान्सफर्मर बिजुली पोल, निर्माता, आपूर्तिकर्ता, मूल्य, लागत
You Might Also Like
167 kVA कूपर प्याड माउन्टेड ट्रान्सफर्मर-13.8/0.24 k...
३७.५ kVA पोल माउन्टेड ट्रान्सफर्मर-२.४/०.१२ केभी|क्य...
167 kVA पावर पोल ट्रान्सफर्मर-13.8/0.347 kV|क्यानडा ...
५० kVA ट्रान्सफर्मर युटिलिटी पोल-13.8/0.24 kV|गुयाना...
167 kVA पोल माउन्टेड वितरण ट्रान्सफर्मर-24.94/0.12/0...
500 kVA पोल माउन्टेड ट्रान्सफर्मर-24.94/0.6 kV|क्यान...
जाँच पठाउनुहोस्










